• Das Museum
  • Die Ausstellung
  • Künstler bei der Arbeit
  • Planen Sie Ihren Besuch
  • Freunde des Museums
  • Pressebereich
  • Didaktischer Bereich
    Reiseleiter und Reiseveranstalter
    Multimedia-system
    Werkstatt
    Veranstaltungen
    Italiano | English | Français | Español | Deutsch | Русский | Português | 中文 | 日本語                HOME
    .
    PLANEN SIE IHREN BESUCH
  • Öffnungszeiten und Tarife
  • Besichtigung
  • Wo wir sind
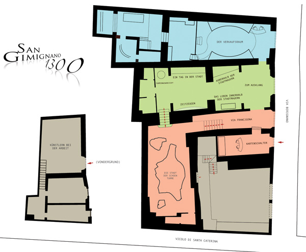
  • Plan des Museums
  • San Gimignano und Umgebung
  • ›› Plan des Museums

     

     

     

    Kontakte | Richtunge

     

     

    Teilen Sie uns Ihre Meinung mit

     

    SanGimignano1300 s.r.l - Tel. 0039 0577 941078 - P.IVA 01265200525